Preis: 222 200 € (1 674 166 kn)

Beschreibung

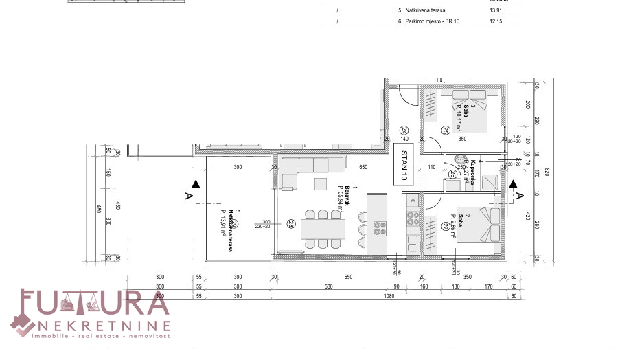
Pag - Povljana, es wird eine zweizimmerige Wohnung mit 60,24 m2 im ersten Stock eines Wohngebäudes mit insgesamt fünfzehn Wohnungen im Bau verkauft, Einzug geplant Sommer 2026.

Besteht aus: zwei Schlafzimmern, Wohnzimmer + Küche + Esszimmer, Badezimmer und Terrasse.

VOM WOHNUNG BIETET SICH EIN MEERBLICK!!!

Liegt an einem hervorragenden Ort, 300 m vom Meer und dem Strand Mali Dubrovnik entfernt, 600 m vom Strand Dubrovnik, in der Nähe von Geschäften, Cafés, Restaurants und allen anderen Annehmlichkeiten für einen angenehmen Urlaub!!

Hat einen Parkplatz.

Dokumentation ist in Ordnung.

Siehe Grundriss der Wohnung mit der Bezeichnung S10.

Grundlegende Informationen über die Immobilie

Objekt-Kennnummer:
iro-699011
Kategorie:
Ferienwohnung
Standort :
Povljana (23249)
Fläche:
60,24 m2
Energieeffizienzklasse:
In Vorbereitung
Anzahl der Zimmer:
2
Anzahl der Schlafzimmer:
2
Anzahl der Badezimmer:
1
Geschoss:
1
Baujahr:
2025

Weitere Informationen über die Immobilie

Sonstige Eigenschaften:

Balkon

Meerblick

Heizung:

Klimaanlage

Installationen:

Strom

Wasser

Klärgrube