Preis: 488 400 € (3 679 850 kn)

Beschreibung

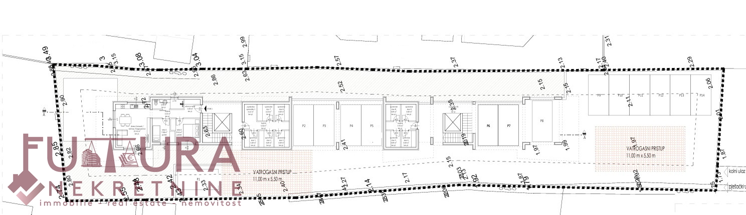
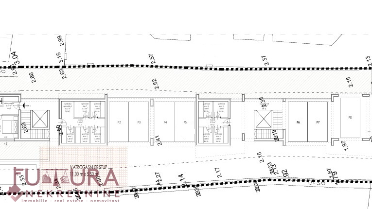
Zadar - Zaton, Baugrundstück mit einer Fläche von 1221 m2 zu verkaufen.

Das Grundstück hat eine regelmäßige Form mit den Maßen ca. 17 m x 80 m, Zufahrtsweg mit einer Breite von 3 m, komplette Infrastruktur daneben.

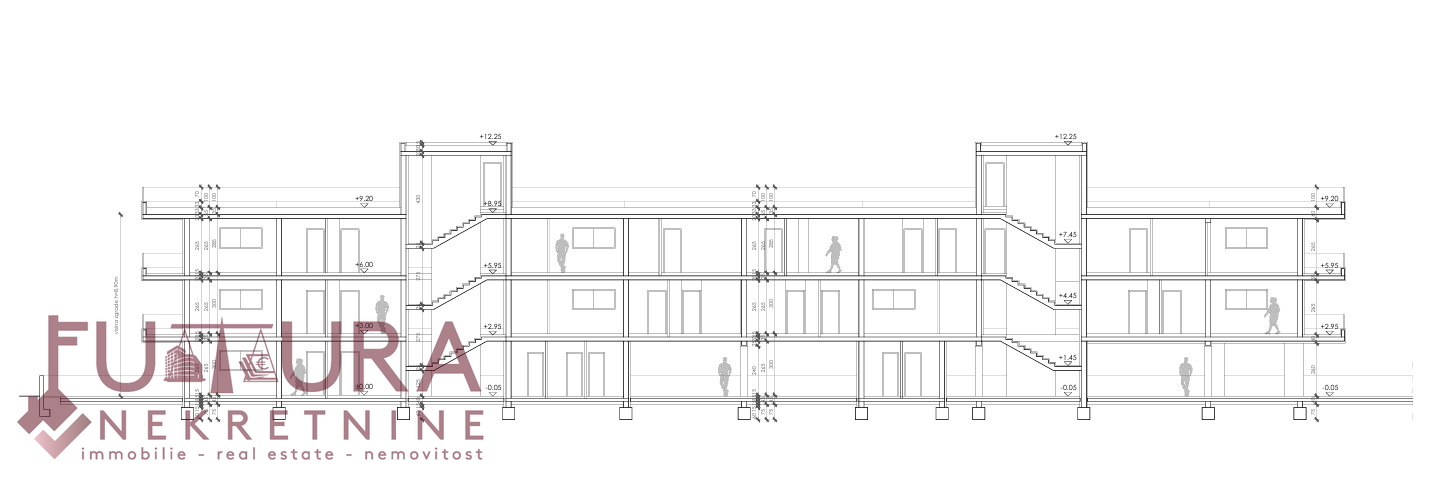
Das Grundstück verfügt über eine Vorplanung für ein Gebäude mit neun Apartments.

VOM GRUNDSTÜCK HAT MAN MEERBLICK!!!

Es befindet sich an einer ausgezeichneten Lage, 65 m vom Meer und Strand entfernt (dritte Reihe), in der Nähe von Restaurants, Cafés, dem Ortszentrum, dem Campingplatz sowie allen weiteren Einrichtungen für einen angenehmen Urlaub!!!

Die Dokumentation ist in Ordnung.

Grundlegende Informationen über die Immobilie

Objekt-Kennnummer:
iro-699128
Kategorie:
Grundstück
Standort :
Nin, Zaton (23232)
Fläche:
1 221,00 m2

Weitere Informationen über die Immobilie

Sonstige Eigenschaften:

Meerblick