Price: 599 000 € (4 513 166 kn)

Property Description

Pag, a semi-detached two-story house with a net usable area of 246.86 m2 on a plot of 326.5 m2, fully furnished, is for sale. There is a possibility of an extension of about 140 m2 net.
The roof is newer, Tondach Venera tiles in ochre antique color. 12 cm wool and 2 foil layers, ventilated. Everything is secured with stainless steel screws. The south and east walls have thermal insulation. Part of the façade, courtyard, and terraces are clad with Benkovac stone, with plenty of newer equipment, newer refrigerators, ovens with fans, Bosch 8kg washing machine, two boilers covering the needs of the entire building, external solar boilers, new LED TVs, WiFi router on each floor covering every part of the house and yard, beds and some furniture are made of solid wood, most mattresses are newer and high quality, replaced joinery and new stairs, joinery is Gealan S9000 with triple glazing, 15-year warranty, stainless steel handles and semi-handles, aluminum shutters.
.
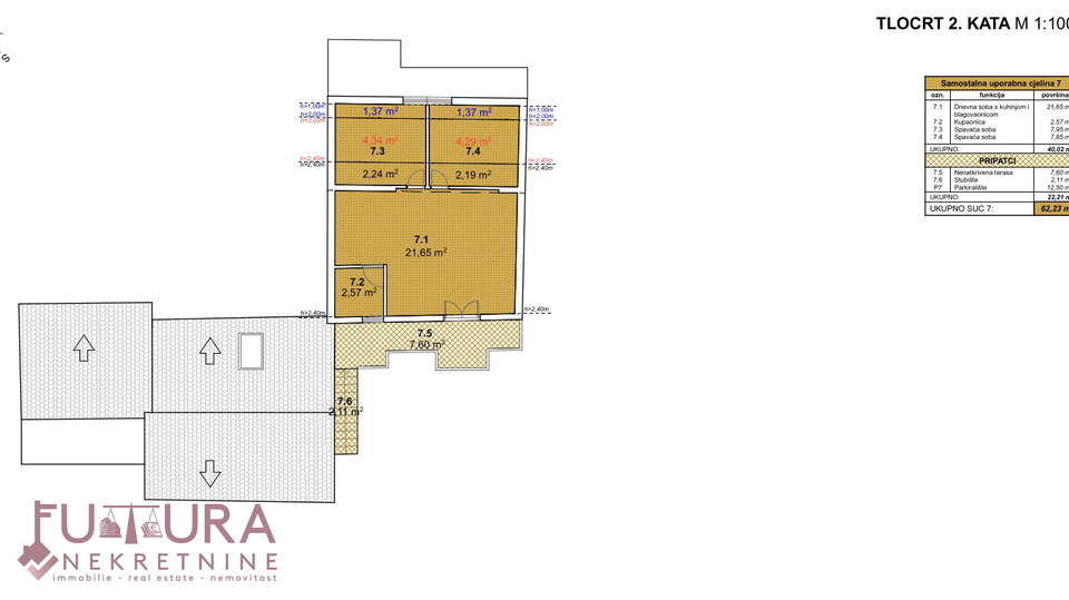
It consists of a ground floor, first floor, and second floor, five separate apartments.
Ground floor:
- AP5 82.26 m2 - 2+2 studio apartment with a larger storage room that can be repurposed, bathroom, and terraces on the north and south sides.
- AP4 42.36 m2 - 2+2 studio apartment with bathroom and terrace on the north side.
- STORAGE: 2 m2.
First floor:
- AP3 38.64 m2 - 2+2 apartment, one bedroom, living room with dining area and kitchen, bathroom, and terrace adjacent to the apartment.
- AP2 39.15 m2 - 2+2 apartment, one bedroom, living room with dining area, kitchen, bathroom, and terraces on the north and south sides.
Second floor:
- AP1 44.45 m2 - 4+2 apartment, two bedrooms, living room with dining area and kitchen, bathroom, and terraces on the north and south sides.
.
THE HOUSE OFFERS A SEA VIEW!!!
.
Located in a good location, 250 m from the sea, close to all necessary amenities for a pleasant vacation!!
.
It has several parking spaces.
.
Documentation is in order.
.
The apartments are individually owned, categorized, and the buyer acquires an established business.
.
The total capacity of the property is 22 people. Prices achieved during the season are €75 for smaller 2+2 apartments and €100 for the 4+2 apartment. Income in 2023 was around €25,000 (from April to November). Renovations and renting through winter would clearly increase income. Behind the house, there is space where a mobile home could be placed (water, electricity, and sewage are exactly there), which would also generate income, and since there is a possibility of extension, at least two apartments of nearly 40 m2 could be added on the right side of the house. This would increase income to around €40,000 per season without renting to workers during winter.

Basic Information

Custom ID:
iro-38325
Category:
House
Location:
Pag (23250)
Area:
246,86 m2
Area Outside:
326,50 m2
Energy Class:
Pending
Room Count:
10
Bedroom Count:
6
Bathroom Count:
5

Additional Information

Various Features:

Balcony

Terrace

Pantry

Garden

Sea View

Utilities:

Water

Septic Tank

Electricity

Phone Line

DSL/Internet