Price: 204 040 € (1 537 339 kn)

Property Description

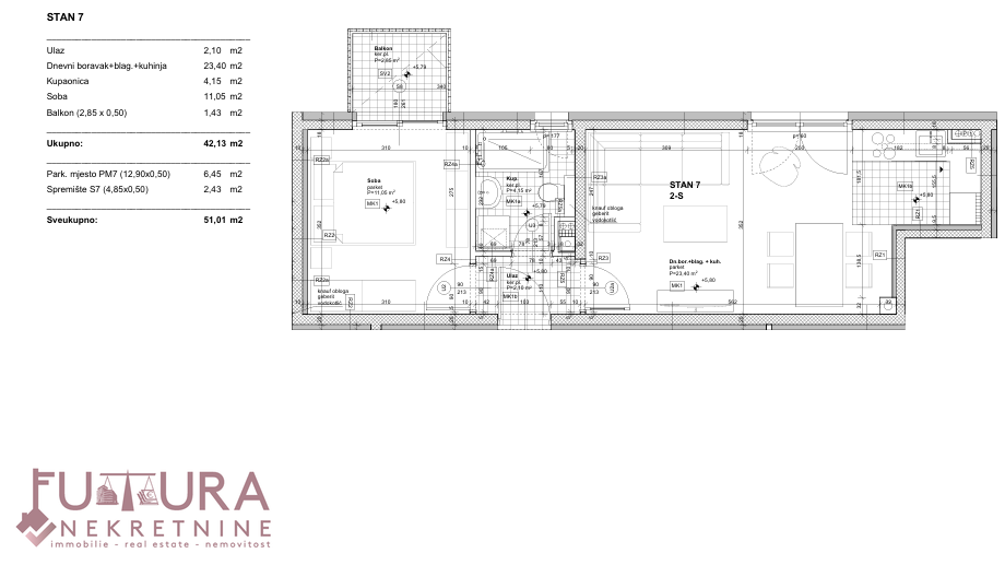
Zagreb - Donja Dubrava (Retkovec), a two-room apartment of 51.01 m2 is for sale on the second floor of a residential building under construction, planned move-in by the end of 2026.

The apartment consists of: one bedroom, kitchen + dining room and living room, bathroom, and balcony.

It includes an outdoor parking space and a storage room.

Area specification:

Entrance 2.10 m2
Living room + dining room + kitchen 23.40 m2
Bathroom 4.15 m2
Room 11.05 m2
Balcony 1.43 m2

Parking and storage
Parking space PM7 6.45 m2
Storage S7 2.43 m2

Calculation
Residential area 42.13 m2
Parking space and storage 8.88 m2
Total 51.01 m2

The location is in the Čulinečka and Dubrava zone near the Health Center, kindergartens, elementary schools, shops such as Lidl and Konzum, bakeries, and pharmacies. It is well connected by train, tram, and bus and is situated in a quiet micro-location with good traffic connectivity.

Documentation is in order

Basic Information

Custom ID:
iro-699064
Category:
Apartment
Location:
Retkovec, Donja Dubrava (10000)
Area:
51,01 m2
Room Count:
2
Apartment type:
2 rooms
Bedroom Count:
1
Bathroom Count:
1
Floor:
2
Building Floors:
3
Year Built:
2025

Additional Information

Various Features:

Balcony

Pantry

PVC joinery

Heating:

Air Conditioning

Central Heating

Utilities:

Electricity

Water

Sewer

Phone Line