Price: 828 518 € (6 242 469 kn)

Property Description

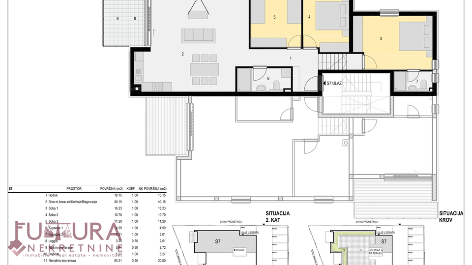
Pag - Mandre, a three-bedroom apartment of 131.72 m2 is for sale on the second floor of a residential building with a total of eight apartments, built in 2026, quality construction, Schuco double-glazed windows throughout the building, Marazzi tiles throughout the building, Hansgrohe faucets, Laufen sanitary ware, etc....

It consists of: three bedrooms, living room + kitchen + dining room, hallway, two bathrooms, and a terrace.

THE APARTMENT OFFERS AN OPEN SEA VIEW!!!

Located in an excellent location 15 m from the sea and the beach (first row), close to all necessary amenities for a pleasant holiday!!!

Includes a parking space which is FREE, a garden of 39.80 m2, and a roof terrace of 83.21 m2.

Documentation is in order.

Planned move-in date 04/2026.

Basic Information

Custom ID:
iro-699079
Category:
Apartment
Location:
Pag, Mandre (23251)
Area:
131,72 m2
Energy Class:
Pending
Room Count:
3
Apartment type:
4 rooms
Bedroom Count:
3
Bathroom Count:
2
Floor:
2
Year Built:
2026

Additional Information

Various Features:

Balcony

Loggia

Sea View

Heating:

Air Conditioning

Utilities:

Electricity

Water

Septic Tank