Price: 339 328 € (2 556 667 kn)

Property Description

Zagreb - Sesvete (Gajišće), an apartment of 106.04 m2 is for sale on the ground floor of a residential building under construction, with a planned move-in date at the end of 2026.

It consists of: three bedrooms, a kitchen with a dining area and living room, a bathroom, a storage room, and a loggia.

It has a garden of 109.09 m2.

The building has an elevator.

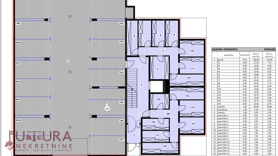
The price and area do not include a garage space and a storage room in the building’s basement; there is an option to choose these.

It is located in an excellent location, 700m from the center of Sesvete, in a quiet environment, right next to the forest.
It is planned so that everything needed is within reach, especially referring to primary and secondary schools, shopping centers (Kaufland, Konzum…), Croatian Post, Health Center, banks, pharmacies…

Documentation is in order.

The apartment is marked as S1.



Basic Information

Custom ID:
iro-699132
Category:
Apartment
Location:
Gajišće, Sesvete (10000)
Area:
106,04 m2
Energy Class:
A
Apartment type:
4 rooms
Building Floors:
4
Year Built:
2026

Additional Information

Utilities:

Electricity

Water

Sewer