Cijena: 480 000 € (3 616 560 kn)

Opis nekretnine

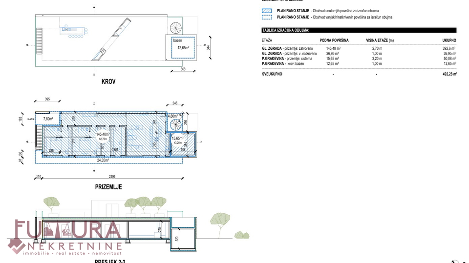
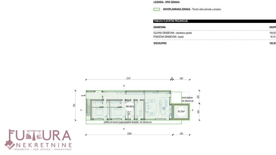
Zadar - Dračevac Ninski, prodaje se samostojeća kuća prizemnica od 212,90 netto stambene površine i 293 m2 okućnice u izgradnji na zemljištu od 531 m2. Visokokvalitetna gradnja. Planirano useljenje kraj/2026.

Sastoji se od: tri spavaće sobe, dnevnog boravka + kuhinja + blagovaona, hodnika, tri kupaonice i terase.

Nalazi se na mirnoj lokaciji, blizina svih potrebnih sadržaja za ugodan i miran odmor te život!!!

Posjeduje dva parkirna mjesta i krovnu terasu na kojoj je bazen.

Dokumentacija uredna.

Osnovne informacije o nekretnini

Šifra objekta:
iro-698956
Kategorija:
Kuća
Lokacija:
Poličnik, Dračevac Ninski (23241)
Kvadratura:
212,90 m2
Okućnica:
531,00 m2
Energetski razred:
U izradi
Broj soba:
3
Broj spavaćih soba:
3
Broj kupaonica:
3
Godina izgradnje:
2026

Dodatne informacije o nekretnini

Razna svojstva:

Balkon

Lođa

Bazen

Grijanje:

Klima

Instalacije:

Struja

Voda

Septička