Cijena: 328 570 € (2 475 611 kn)

Opis nekretnine

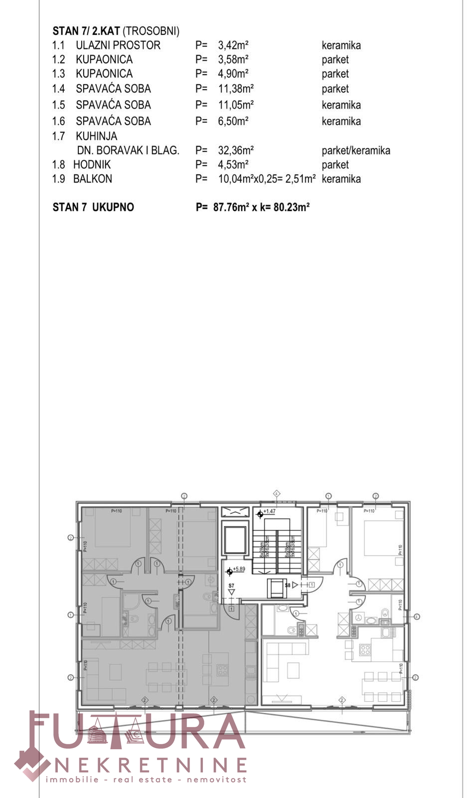
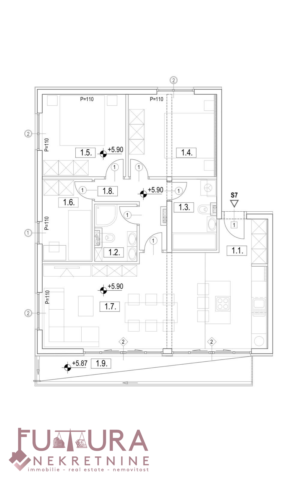
Zadar - Plovanija, prodaje se trosobni stan od 80,23 m2 na drugom katu stambenog objekta u izgradnji sa ukupno osam stanova, planirano useljenje 01.04.2026.

Sastoji se od: tri spavaće sobe, dnevnog boravka + kuhinja + blagovaona, hodnika, dvije kupaonice i balkona.

IZ STANA SE PRUŽA POGLED NA MORE!!!!

Nalazi se na dobroj lokaciji, blizina svih potrebnih sadržaja potrebnih za ugodan život!!!

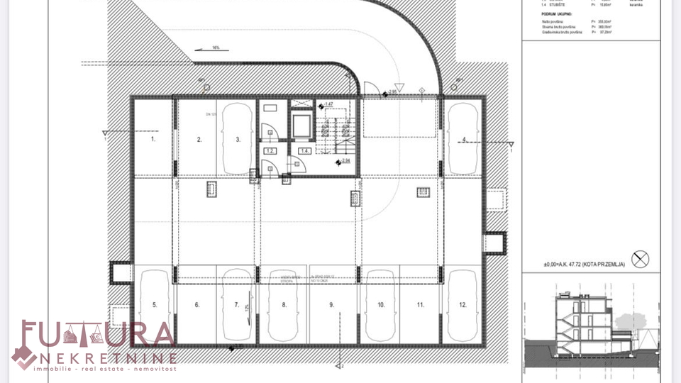
Posjeduje garažno parkirno mjesto, vanjsko parkirno mjesto i spremište.

Zgrada ima lift, podno grijenje i dizalicu topline.

Mogućnost kupnje stana potpuno namještenog, kupac trenutno može birati parkete, pločice, sanitarije i namještaj.

Dokumentacija uredna.

Osnovne informacije o nekretnini

Šifra objekta:
iro-698987
Kategorija:
Stan
Lokacija:
Zadar, Plovanija (23000)
Kvadratura:
80,23 m2
Energetski razred:
A+
Broj soba:
3
Tip stana:
3S+DB
Broj spavaćih soba:
3
Broj kupaonica:
2
Kat:
2
Godina izgradnje:
2025

Dodatne informacije o nekretnini

Razna svojstva:

Balkon

Lift

Ostava (izba)

Pogled na more

Grijanje:

Klima

Instalacije:

Struja

Voda

Kanalizacija