Prezzo: 409 344 € (3 084 202 kn)

Descrizione

Zagreb - Sesvete (Gajišće), in vendita appartamento di 106,04 m2 al piano terra di un edificio residenziale in costruzione, con previsto termine di consegna a fine 2026.

Si compone di: tre camere da letto, cucina con sala da pranzo e soggiorno, bagno, ripostiglio e loggia.

Possiede un giardino di 109,09 m2.

L’edificio è dotato di ascensore.

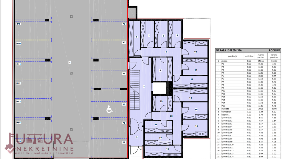
Il prezzo e la metratura non includono il posto auto in garage e la cantina nel seminterrato dell’edificio, è possibile scegliere tali spazi.

Si trova in un’ottima posizione a 700 m dal centro della città di Sesvete, in un ambiente tranquillo, proprio accanto al bosco.
La pianificazione è stata studiata in modo che tutto il necessario sia a portata di mano, in particolare per quanto riguarda la scuola primaria e secondaria, i centri commerciali (Kaufland, Konzum…), l’ufficio postale croato, il centro sanitario, le banche, le farmacie…

Documentazione in regola.

L’appartamento è identificato con il codice S1.



Informazioni di base sulla proprietà

Codice immobile:
iro-699142
Categoria:
Appartamento
Localita':
Gajišće, Sesvete (10000)
Superficie:
127,92 m2
Classe energetica:
A
Numero di stanze:
4
Tipo di appartamento:
4 locali
Numero di camere da letto:
3
Numero di bagni:
1
Piano:
3
Numero di piani:
4
Anno di costruzione:
2026

Ulteriori informazioni sulla proprietà

Utenze:

Elettricita'

Acqua

Scarico acqua