Prezzo: 251 328 € (1 893 631 kn)
Descrizione
Zagreb - Sesvete (Gajišće), in vendita appartamento di 106,04 m2 al piano terra di un edificio residenziale in costruzione, con previsto termine di consegna a fine 2026.
Si compone di: tre camere da letto, cucina con sala da pranzo e soggiorno, bagno, ripostiglio e loggia.
Possiede un giardino di 109,09 m2.
L’edificio è dotato di ascensore.
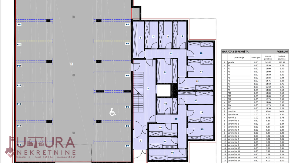
Il prezzo e la metratura non includono il posto auto in garage e la cantina nel seminterrato dell’edificio, è possibile scegliere tali spazi.
Si trova in un’ottima posizione a 700 m dal centro della città di Sesvete, in un ambiente tranquillo, proprio accanto al bosco.
La pianificazione è stata studiata in modo che tutto il necessario sia a portata di mano, in particolare per quanto riguarda la scuola primaria e secondaria, i centri commerciali (Kaufland, Konzum…), l’ufficio postale croato, il centro sanitario, le banche, le farmacie…
Documentazione in regola.
L’appartamento è identificato con il codice S1.
Informazioni di base sulla proprietà
Ulteriori informazioni sulla proprietà
Elettricita'
Acqua
Scarico acqua