Price: 211 344 € (1 592 371 kn)

Property Description

Паг - Повляна, продается двухкомнатная квартира площадью 62,16 м2 на первом этаже жилого здания с общим количеством шесть квартир в стадии строительства, планируемое заселение 12/2026.

Высококлассное новостроение, использованы только самые качественные материалы - основная конструктивная система здания - железобетонная, стены из кирпича Porotherm profi, первоклассная итальянская керамика, первоклассная сантехника Hansgrohe, душевые каналы TECE, душевые стеклянные стены с дверями, изготовленными по индивидуальному заказу, ПВХ ISO окна с электроприводом жалюзи и москитными сетками для защиты от комаров и насекомых. Окна Aluplast, электроподъемники жалюзи, москитные сетки против комаров, стекла 4S (4S = Four Seasons стекла, четыре сезона года - регулируют прохождение тепла в зависимости от времени года и внешней температуры, летом уменьшают нагрев за счет усиленного отражения солнечных лучей, зимой пропускают тепло солнечных лучей, обеспечивают усиленную изоляцию и предотвращают конденсацию, гарантируют снижение затрат на отопление и кондиционирование), большие остекленные поверхности, ограждения террас - комбинация сплошных и стеклянных ограждений, видеофон, спутниковое телевидение, все помещения имеют соответствующую тепло- и гидроизоляцию, шумоизоляцию, звукоизоляцию междуэтажных конструкций, лестница облицована гранитом, гранитные подоконники, теплый пол в жилых комнатах и ванных комнатах – установлен Wi-Fi модуль – управление теплым полом через приложение на телефоне, дизайнерские бойлеры Ariston объемом 80 л - установлен Wi-Fi модуль – управление бойлером через приложение на телефоне, кондиционеры для отопления и охлаждения в каждой спальне и гостиной - установлен Wi-Fi модуль – управление кондиционерами через приложение на телефоне, входные двери в квартиры Dierre с противовзломной и противопожарной защитой (возможна установка модуля управления дверями через Wi-Fi), межкомнатные двери со скрытыми петлями и магнитными замками и др...

Состоит из: двух спален, гостиной + кухни + столовой, ванной комнаты и террасы.

ИЗ КВАРТИРЫ ОТКРЫВАЕТСЯ ВИД НА МОРЕ!!!

Расположена в хорошем месте, в 500 м от моря и пляжа Св. Никола, в 120 м от центра города, рядом магазины, кафе, рестораны и все остальные удобства, необходимые для комфортного и спокойного отдыха!!!

Имеется парковочное место (оборудовано подготовкой установки для зарядки электромобилей).

Документация в порядке.

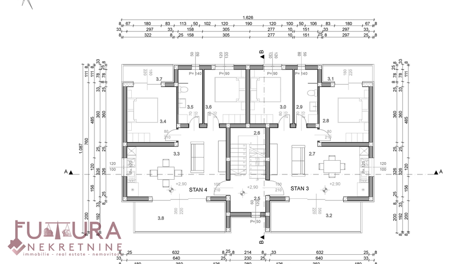
План квартиры смотрите - квартира S3.



Basic Information

Код объекта:
iro-698969
Категория:
Апартамент
Местоположение:
Povljana (23249)
Площадь :
62,16 m2
Энергетический класс:
В разработке
Количество комнат:
2
Количество спален:
2
Количество санузлов:
1
Этаж:
1
Всего этажей:
2
Год постройки:
2025

Additional Information

Разные свойства:

Балкон

Вид на море

Отопление:

Кондиционер

Тёплый пол

Проводка :

Электричество

Вода

Септик